Seamless CAD Drafting for Your Projects

From sketches to detailed plans, our remote CAD drafting services integrate smoothly into your workflow, helping architects and contractors save time and maintain consistency.

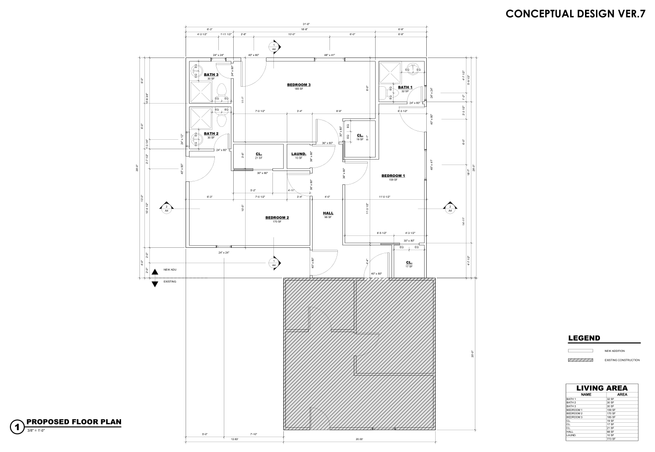
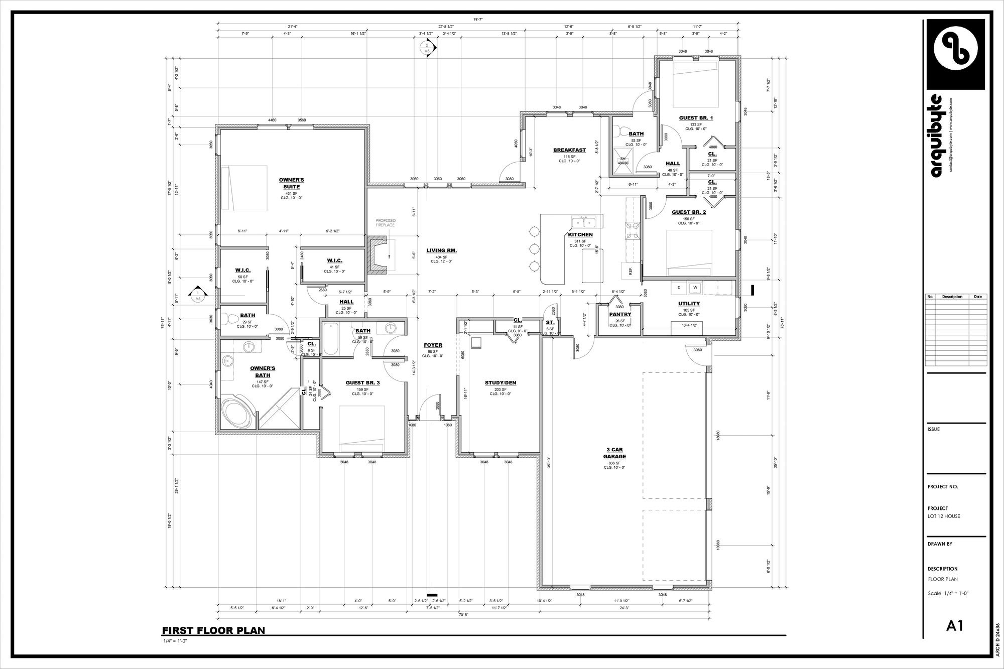
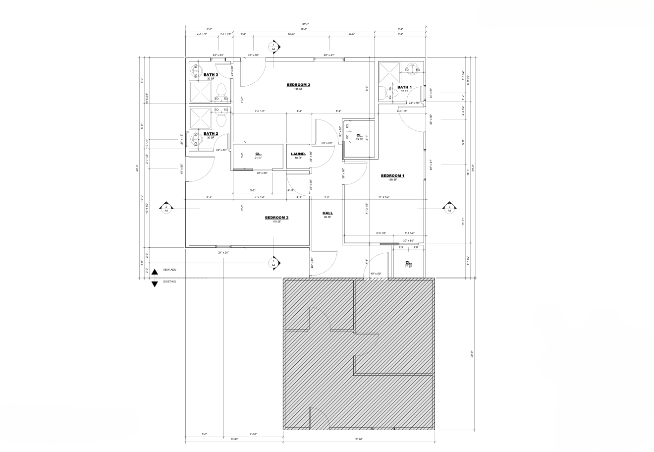
Architectural drafting and documentation

Arquibyte provides reliable CAD drafting services for architects, designers, and construction professionals who need accurate and well-organized documentation. We produce clear and precise drawings, from floor plans to detailed project documents, all in AutoCAD-compatible formats that integrate smoothly into your workflow.

Our remote drafting team helps you increase production capacity, streamline workloads, and maintain consistent standards across projects of any size.

  • Architectural Plan Drafting

    Floor plans, RCPs, roof plans, interior layouts, and existing, demolition, and proposed sets.

  • Elevations and Sections

    Exterior elevations, interior elevations, and cross-section drawings.

  • Construction Details

    Drafting support for architectural and interior construction details.

  • Standards and Documentation Support

    Title blocks, layer organization, and formatting aligned with your project standards.

3D modeling, BIM and visualization

Our 3D modeling and BIM drafting services turn your 2D layouts into clear and detailed 3D models, visualizations, and diagrams. Arquibyte provides flexible CAD and BIM support for design communication, coordination, and presentations, all delivered in DWG and Revit-compatible formats.

From concept models to structured BIM documentation, we help you present design intent accurately and efficiently.

  • 3D Modeling from 2D Drawings

    Accurate digital models created from sketches, PDFs, or CAD files.

  • Revit and BIM Support

    Revit model development, updates, and structured BIM representations.

  • Rendering and Visualizations

    Still renderings, animations, and presentation-ready visuals.

  • Model Cleanup and Organization

    Layer management, file optimization, and model refinement.

Engineering and technical drafting

Arquibyte provides CAD drafting support for MEP and civil consultants who need clear and precise drawings based on their layouts, markups, or instructions. We prepare coordination-ready files that represent your systems accurately, always delivered in AutoCAD or Revit-compatible formats for smooth integration into your workflow.

Our drafting team maintains consistency, accuracy, and quick turnaround times for every submittal package.

  • MEP Layout Drafting

    HVAC, electrical, and plumbing layouts drafted from client-provided information.

  • Equipment and Fixture Plans

    Placement plans for equipment, fixtures, and general layout needs.

  • Site and Grading Drafting

    Civil site plans, grading diagrams, and related drafting support.

  • Standards and Documentation

    Layer organization, title block setup, and formatting aligned with client standards.

Site and as-built documentation

Arquibyte provides as-built and existing-conditions drafting services based on the field notes, measurements, photos, or scans you supply. We convert your information into clear and detailed CAD drawings compatible with AutoCAD or Revit workflows.

Our drafting support helps architects and contractors maintain accurate records for coordination, renovations, and project updates.

  • As-Built Drafting

    Drawings created from photos, sketches, PDFs, or field-provided information.

  • Site and Landscape Plans

    Drafting support for site layouts, landscape elements, and general site features.

  • Parking and Circulation Plans

    Parking layouts, access paths, and circulation diagrams.

  • Survey Base Plans

    Base plans created from client-supplied land survey data.

It's very easy to get started

Every project begins with a clear and straightforward process.

  1. 1. Tell us what you need

    Provide a clear description of your project and share any files, sketches, or documents that help explain your requirements. Send everything through our contact form so we can understand your needs from the start.

  2. 2. We review your information

    Our team reviews the materials you provide and prepares a detailed proposal tailored to your project.

  3. 3. We take care of the job

    Once you approve the proposal, we begin working right away. You can expect steady communication and fast, reliable progress.

Trusted by Professionals Across the U.S.

For more than five years, Arquibyte has helped architects, designers, and construction professionals across California, Florida, Texas, Arizona, and nationwide with accurate and timely CAD drafting support. Our clients count on Arquibyte for clear, reliable, and efficient CAD drafting support that keeps their projects on track. See what they have to say about working with us.

Almayeva_Ballet

August 29, 2025

5 stars of 5

I have just finished a small renovation drafting project with Arquibyte and very happy with the quality of their work and level of service they provide. Reasonable and clear estimate, attention to detail, respectful communication and timely delivery. Highly recommend!

Jimmy Coury

August 12, 2025

5 stars of 5

They were attentive to my needs and got the job done timely! Highly recommend.

Alexandra Chambers

July 21, 2022

5 stars of 5

Excellent Services! We've been working with Sotico E. with Arquibyte for several months now on a custom home build. We're a general contractor and private homeowner. This company has been stellar to work with, fast and easy communications and quick turn-around times. Our local architects and draftsman were not taking on clients, and we're very pleased with finding Arquibyte as our new remote draftman/architect. We've had delays with other vendors that have held up Arquibytes designers, but Sotico has been super friendly and helpful during our entire project. Our company will be using their services again in the future. We highly recommend this firm for your designing needs.

Scott Link

July 12, 2022

5 stars of 5

These guys are AMAZING! Great process, simple, convenient and very fair pricing. I worked with Sotico and he was on-point, professional, very responsive and strong attention to detail. Plans were exactly as requested and very minor revisions. I could not recommend this company more highly!! 5-STARS!

Greg G

July 10, 2022

5 stars of 5

I had a very positive experience with Arquibyte. We were a little reluctant at first as the project had to be done completely via email but they were very attentive at the start to establish a cadence and be very responsive. We had to make changes in the design in order to get to the proper virtual renderings and they understood the nuances and took our input each time. Would easily use them again. On time and on budget!

Arquibyte operates fully remotely and provides drafting and design support only. Any professional stamps, approvals, or permit submissions must be handled by a licensed professional of record.

Why choose Arquibyte?

Arquibyte is a fully remote CAD drafting studio with a dedicated team of experienced drafters and specialists.

We focus on precision, flexibility, scalability, and on-time delivery.

Whether you are an architect, engineer, contractor, designer, or homeowner, Arquibyte is ready to support your projects.

  • On-Demand Excellence

    No long-term contracts required. Use our drafting expertise exactly when you need it, from small updates to full documentation sets.

  • Flexibility

    Reduce staff overhead, hardware, and software costs. Scale drafting resources up or down for optimal efficiency.

  • Expert Proficiency

    Our team is skilled in industry-standard software, converting sketches, mark-ups, and files into clean, accurate technical drawings.

  • Transparent Pricing

    We provide a clear service proposal outlining the scope of work, delivered files, and cost. What you see is what you pay.

Elevate your workflow

Request a free quote and experience the difference of working with a drafting team dedicated to your success.

Request a free quote

Our website uses essential cookies to ensure proper functionality, and Google Analytics and Google Ads cookies to measure traffic and advertising performance.

Do you accept the use of non-essential cookies for these purposes?

Read cookies policy